Aangekocht

Ploeglaan 47 Eemnes

Omschrijving

Gelegen aan een rustige laan een zeer ruime, moderne en sfeervolle eindwoning met 4 slaapkamers! Aan de achterzijde is de woning gelegen aan een speelterreintje.

Bouwjaar ca. 1969; woonoppervlak 130 m2; perceeloppervlak 187 m2.

De indeling is als volgt:

Parterre:
Entree, hal, meterkast, modern toilet (2016) en trapopgang. Ruime lichte woonkamer met houten vloer. Ruime luxe open keuken (2008) met inbouwapparatuur. Vanuit de keuken heeft u toegang tot de achtertuin.

1e Etage:
Ruime overloop met bergkast, 3 ruime slaapkamers, moderne badkamer (2016) met inloopdouche met sunshower, wastafel-meubel en tweede toilet.

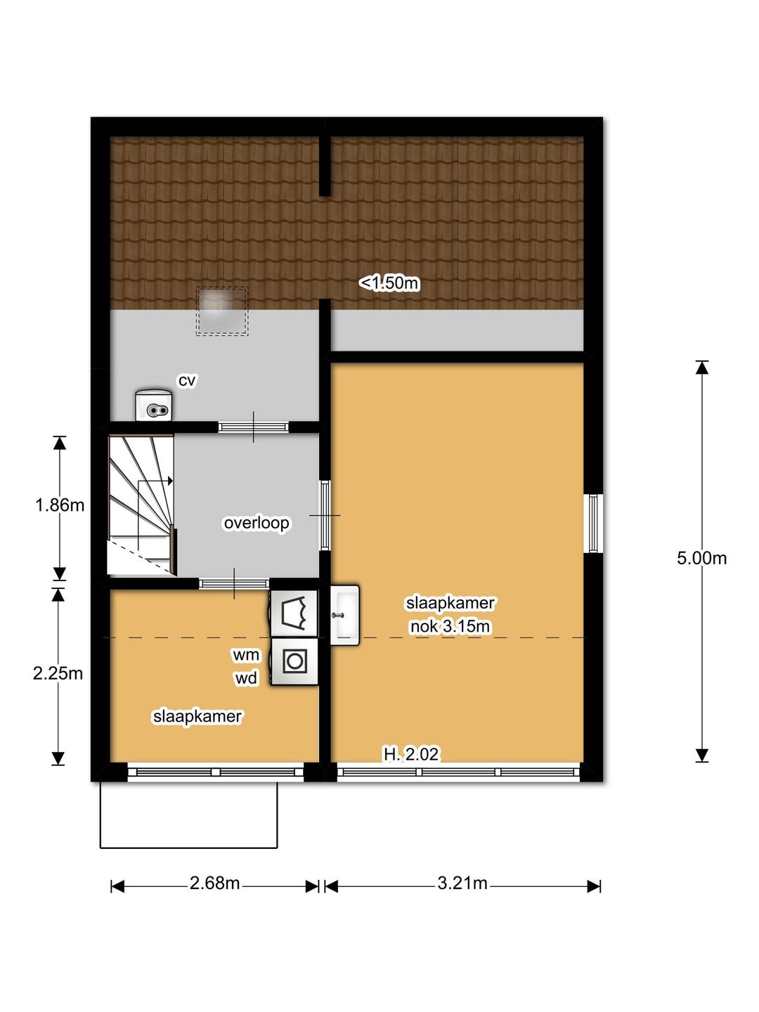
2e Etage:
Vaste trap naar grote en hoge zolder met een grote (slaap)kamer. Daarnaast treft u een kleinere kamer welke momenteel wordt gebruikt als waskamer. Separaat treft u de cv-ruimte (Cv-ketel uit 2016).

Bijzonderheden:
– Zeer goed afgewerkte woning;
– De woning is geheel geïsoleerd en voorzien van zonnepanelen;
– Zeer ruim gezinshuis nabij het centrum van Eemnes.

Eemnes
Gelegen centraal in Nederland, aan de rand van ’t Gooi, biedt een rustige en kindvriendelijke woonomgeving met een dorpse sfeer en een nieuw dorpshart.
Er zijn diverse scholen en sportvoorzieningen.

Ook voor uw boodschappen hoeft u Eemnes niet uit. In het dorpscentrum vindt u o.a. twee supermarkten, een drogist en een bakker. Meer winkelaanbod, restaurants e.d. vindt u in het nabij gelegen Laren, Blaricum, Hilversum en Baarn.

Eemnes heeft zowel oude karakteristieke woonhuizen (unieke woonboerderijen) als onder moderne architectuur gebouwde woningen.

Het heeft zeer goede aansluitingen naar de snelwegen A1 en A27 (circa 15 autominuten naar Utrecht en circa 25 naar Amsterdam). Gelegen nabij de vele rijke natuurgebieden (Eemnesser polder, bos en heide), waar u wandelend of op de fiets kunt genieten van de rust en ruimte.

Lees de volledige omschrijving

Kenmerken

Aangeboden sinds
6+ maanden
Status
Aangekocht
Soort woonhuis
Eengezinswoning, eindwoning
Soort bouw
Bestaande bouw
Bouwjaar
1969
Soort dak
Pannen
Ligging
In woonwijk

Oppervlakten en inhoud

Wonen
130 m²
Externe bergruimte
9 m²
Perceel
187 m²
Inhoud
458 m³

Indeling

Aantal kamers
6 kamers (4 slaapkamers)
Aantal badkamers
1 badkamer
Badkamervoorzieningen
Inloopdouche, toilet, wastafel
Aantal woonlagen
3

Energie

Energielabel
D
Isolatie
Volledig geisoleerd
Warm water
Cv ketel

Kadastrale gegevens

Perceelnaam
Eemnes G 2668
Oppervlakte
187 m²
Eigendomssituatie
Volle eigendom
Perceel
ENS00-G-2668

Buitenruimte

Tuin
Achtertuin, voortuin
Achtertuin
62 m²
Ligging tuin
Noord bereikbaar via achterom

Parkeergelegenheid

Soort parkeergelegenheid
Openbaar parkeren
Bekijk alle kenmerken